Appartement à vendre - 1000 Bruxelles

210.000
41m²
PEB

+

Description

1 1
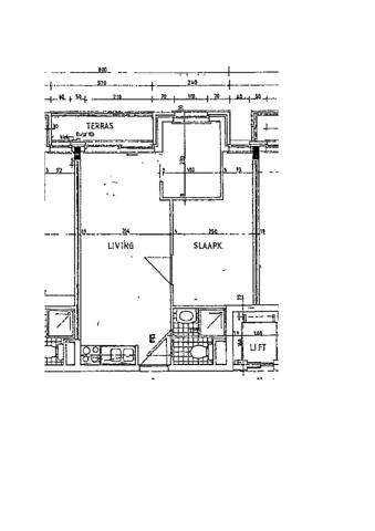
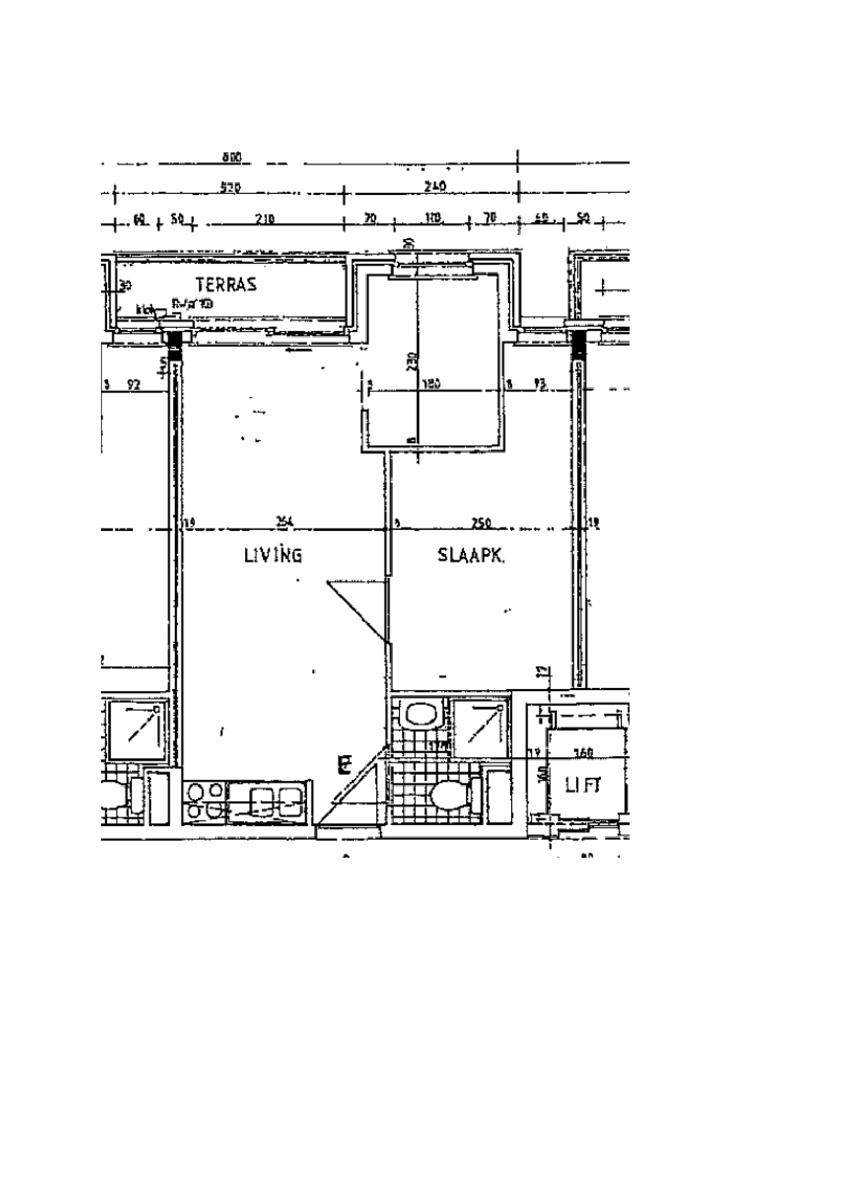
Infos et visites ICS by Audrey Au coeur du quartier Européen à deux pas du square Ambiorix, ravissant flat rénové en 2018, vendu MEUBLE de +/- 41m² situé au 4ème étage avec ascenseur d'un immeuble construit en 1996. Il est agencé comme suit: cuisine équipée ouverte sur le salon et salle à manger accédant à la terrasse arrière. Une petite chambre, un coin bureau et une salle de douches avec toilette. Possibilité d'acquérir un emplacement de parking intérieur pour 25.000€ en supl. (p05) PAS DE CAVE Actuellement loué MEUBLE à 775€ + 80€ pour les communs et l'eau froide. Bail jusqu'au 31/12/2023. Chauffage électrique faible consommation. Charges mensuel propriétaire:130€ pour les communs, eau froide, fond de roulement, fond de réserve.
Contactez-nous

Adresse

Rue des Eburons
1000 Bruxelles

Prix : 210.000

Catégorie : Appartement

Surface : 41m²

Surface bâtie : 41m²

Charges : 80€

Retour